В историческом центре Уфы за счет сноса частного сектора будут реконструированы детсад и гимназия

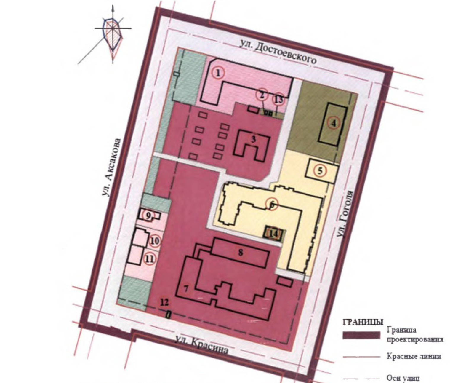
В Уфе утвержден проект планировки территории, ограниченной улицами Достоевского,Гоголя, Красина и Аксакова.

В Уфе утвержден проект планировки территории, ограниченной улицами Достоевского,Гоголя, Красина и Аксакова.

На проектируемой территории располагаются 1-2-этажные жилые дома усадебного типа, двухэтажные жилые дома, 8-12-этажный жилой дом со встроено-пристроенными предприятиями обслуживания. Кроме того, вдоль улицы Аксакова расположены объекты культурного наследия.  

Проектом предлагается   сохранение объектов культурного наследия с изменением функционального назначения с жилого на общественное, благоустройство территории квартала и снос жилой застройки общей площадью 2,39 тысяч квадратных метров. Размещение новой жилой застройки проектом не предусмотрено.

На   месте сносимого жилья проектом предусмотрена реконструкция здания детского сад № 6 с увеличением мощности с 80 до 188 мест, а также реконструкция существующего здания гимназии №91 и строительство нового корпуса с увеличением общей вместимости с 680 до 1110 учащихся и территории учебного заведения.

Последние новости

Как сочетать холодные роллы с напитками — от зеленого чая до вина

Гид по идеальным вкусовым парам для ярких гастрономических впечатлений

Можно ли отремонтировать серводвигатель самостоятельно?

Разбираемся, когда ремонт своими руками возможен, а когда лучше обратиться к специалистам

Ежегодный форум «Сильные идеи для нового времени»

Форум объединяет лидеров решений в сфере предпринимательства, креативной экономики, инноваций, социального развития, технологического суверенитета, профессиональной самореализации,

Коррекция фиброза и возрастных изменений: когда показан эндотканевой лифтинг

Как современная технология помогает вернуть коже упругость, убрать отёки и улучшить рельеф без хирургии

Здесь вы найдете свежие и актуальные новости в Сальске, охватывающие все важные события в городе

Комментарии (0)

Добавить комментарий

Ваш email не публикуется. Обязательные поля отмечены *